大江4丁目ニュータウン3期【7号地】
| 大津市大江4丁目 | |
JR東海道本線「瀬田」駅徒歩12分 |
|
| *5,390万円* ✨蓄電池7.4kW搭載✨ | |
| 135.19㎡(40.89坪) | |
| 118.85㎡(35.95坪) | |
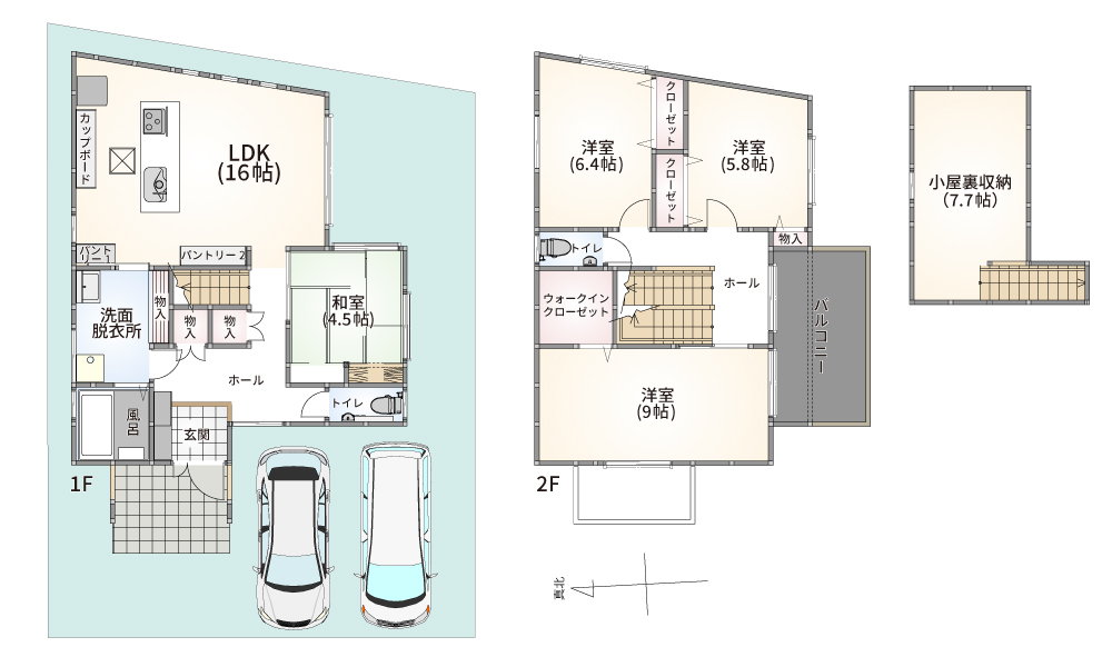
| 4LDK+小屋裏収納 |
分譲地について

JR「瀬田」駅、徒歩12分 。
駅前の商業施設や街区を取り囲む教育施設など、 暮らしやすさを実感できる便利な街「大江4丁目」。
休日には瀬田公園や、フォレオ一里山店に出かけて 家族で楽しむのも素敵です。
外観

ただいま、外構工事中です。

内部

南側の大きな窓が明るさをもたらす16帖のLDK。パントリー付きで収納力も備えています。

対面式キッチンだからお子様の様子を見守りながら、家族や友人と並んで料理ができる空間です。

収納&室内物干し付きの洗面室

アクセントパネルがおしゃれな浴室

南向きバルコニー

安全安心な固定階段付きの小屋裏収納7.7帖
間取り

【4LDK、土地面積135.19㎡、建物面積118.85㎡】
ZEH住宅/UA値=0.60/長期優良住宅認定/住宅性能評価/太陽光発電5.6kW/蓄電池7.40kW/耐震等級3+制震装置TRCダンパー/高気密・高断熱住宅/省エネ基準適合/フラット35s利用可能/オール電化/エコキュート/駐車2台可
分譲区画図
最新の販売状況はお問い合わせくださいませ。
地図
大津市大江4丁目
路線図

物件概要
| 土地面積 | 135.19㎡(40.89坪) |
|---|---|
| 建物面積 | 118.85㎡(35.95坪) |
| 住所 | 大津市大江4丁目 |
| 交通 | JR東海道本線「瀬田」駅徒歩12分 |
| 建ぺい率 | 60 % |
| 容積率 | 200 % |
| 完成時期 | 2025年12月頃 |
| 入居時期 | - |
| 土地の権利形態 | 所有権 |
| 構造・工法 | 木造2階建て(軸組工法) |
| 用途地域 | 1種中高 |
| 地目 | 宅地 |
| 私道負担 | 無し |
| 諸費用 | |
| インフラ | 関西電力、公営水道、公共下水道、 オール電化 |
| 道路幅員 | 6.0m |
| その他制限事項 | 無し |
| その他概要 ・特記事項 |
担当者:橋本不動産(株)守山本店:第R05確認建築滋建住01250号(R5.8.9) |
| リンク | |
| お問い合わせ先 | 077-514-0300 |
| 事業主(売主) | 橋本不動産株式会社 |
| 情報提供日 | 2026-05-04 |
| 次回更新日 | 2026-05-18 |















